Skip to main content Skip to footer

Pre-Reviewed Detached ARU's

To make it easier for property owners to add a detached ARU, we teamed up with builders to create a list of pre-reviewed building plans that meet Ontario Building Code standards. 

You must still submit your ARU Building Permit application, but using pre-reviewed plans will make the review process faster. All plans have been checked by City building staff, saving time during design and permit review.

Having plans pre-reviewed for Building Code compliance does not mean they meet the Zoning Bylaw. Each property will need to be checked through the final permit process to ensure zoning compliance, as each lot configuration and ARU placement differs within lot constraints.

Contact vendors directly to discuss your project.

Detached Additional Residential Units (ARUs) are small houses, self-contained, dwelling units separated from the main dwelling and located in the rear or side yard for an existing single-detached or semi-detached dwelling or townhouse dwelling. They must contain:

  • Independent washroom
  • Kitchen
  • Laundry facilities
  • Sleeping space 

Brauer Housing Developments Inc.

Address: 107 S John Street, Belleville ON, K8N 3E5
Phone: 613-921-0042
Website: www.brauerhomes.ca

Detached additional residential unit

Brauer Living Pods - Studio Suite

Learn more about the Brauer Living Pods specifications.

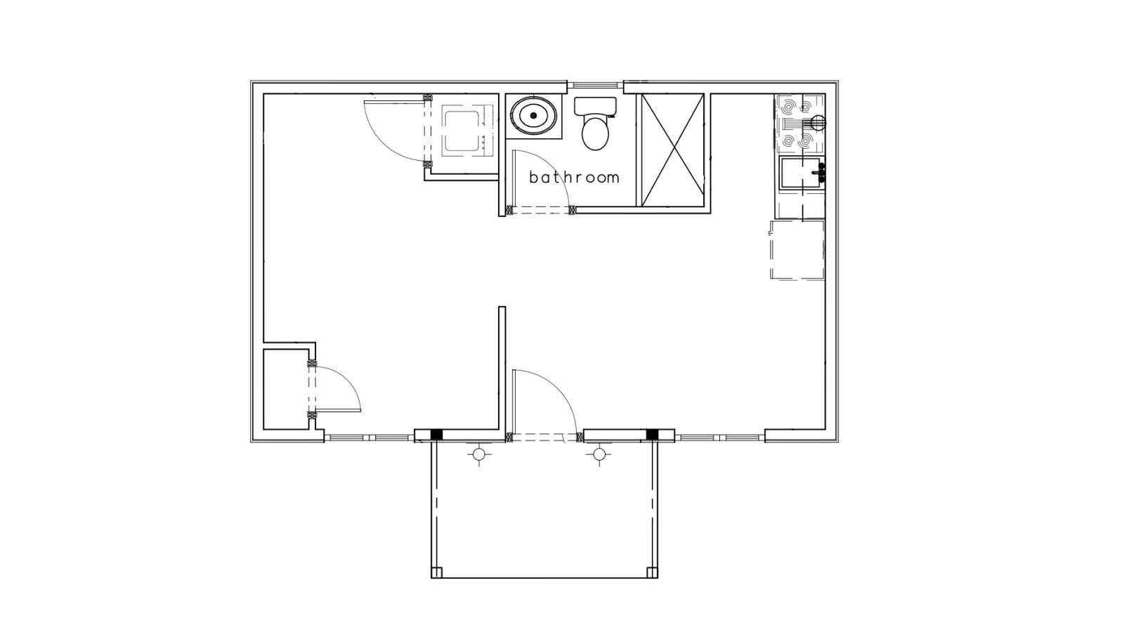
Top view of an architectural floor plan of a detached additional residential unit

Brauer Living Pods - Studio suite - Top view

Contact the vendor for floorplans and elevations specifications of Brauer Living Pods - Studio suite.

Front view of an architectural floor plan of a detached additional residential unit

Brauer Living Pods - Studio suite - Front view

Contact the vendor for floorplans and elevations specifications of Brauer Living Pods - Studio suite.

Front view of an architectural floor plan of a detached additional residential unit

Brauer Living Pods - One bedroom suite - Top view

Contact the vendor for floorplans and elevations specifications of Brauer Living Pods - One bedroom suite.

Front view of an architectural floor plan of a detached additional residential unit

Brauer Living Pods - One bedroom suite - Front view

Contact the vendor for floorplans and elevations specifications of Brauer Living Pods - One bedroom suite.

Top view of an architectural floor plan of a detached additional residential unit

Brauer Living Pods - Two bedroom suite - Top view

Contact the vendor for floorplans and elevations specifications of Brauer Living Pods - Two bedroom suite.

Front view of an architectural floor plan of a detached additional residential unit

Brauer Living Pods - Two Bedroom Suite - Front view

Contact the vendor for floorplans and elevations specifications of Brauer Living Pods - Two bedroom suite.

First Capital Construction

Address: 1472 McAdoos Lane, Kingston ON, K0H 1S0
Phone: 613-530-2468
Website: www.firstcapitalconstruction.ca

Front view of an architectural floor plan of a detached additional residential unit

Studio A

Learn more about the Studio model product specifications.

Top view of an architectural floor plan of a detached additional residential unit

Studio A

Contact the vendor for floorplans and elevations specifications of the Studio model.

Side view of an architectural floor plan of a detached additional residential unit

Studio A

Contact the vendor for floorplans and elevations specifications of the Studio model.

Redden's Contracting Inc.

Address: 2485 McIvor Rd, Kingston ON, K7L 4V4
Phone: 613-453-9610
Website: www.reddenscontracting.ca

Detached additional residential unit

Learn more about the product specifications.

Detached additional residential unit

Learn more about the product specifications.

Top view of an architectural floor plan of a detached additional residential unit

Contact the vendor for floorplans and elevations specifications of the model.

Front view of an architectural floor plan of a detached additional residential unit

Contact the vendor for floorplans and elevations specifications of the model.

Side view of an architectural floor plan of a detached additional residential unit

Contact the vendor for floorplans and elevations specifications of the model.

Please note: The City of Kingston makes no guarantees, representations, or warranty regarding the pre-reviewed detached ARU plans displayed here. The pre-reviewed detached ARU plans are intended to help property owners consider available options and connect property owners to vendors. All agreements and financial transactions will occur between the property owner and the vendor. 

The City of Kingston acknowledges that we are on the traditional homeland of the Anishinabek, Haudenosaunee, and the Huron-Wendat, and thanks these nations for their care and stewardship over this shared land.

Today, the City is committed to working with Indigenous peoples and all residents to pursue a united path of reconciliation.

Learn more about the City's reconciliation initiatives.

This website uses cookies to enhance usability and provide you with a more personal experience. By using this website, you agree to our use of cookies. Review our Privacy statement.